Barnard College - Altschul Hall
New York, NY
Highlights
Client
Lehrer Cumming
Services
3D Revit
2D CAD
Floor Plans
Exterior Elevations
Reflected Ceiling Plans
Roof Plans
MEP/FP Documentation
Categories
Academic
MEP
Equipment
Leica RTC360, Leica ScanStation P50
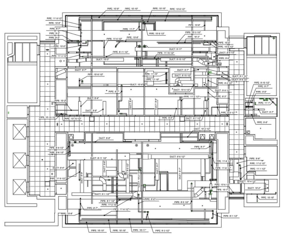
The collaboration with Existing Conditions commenced at Barnard College, where our initial task involved the 3D laser scanning of 147,000 square feet within Altschul Hall. To accomplish this, we deployed two 3D laser scanning teams, each responsible for capturing point cloud data from the corridors on their respective floors and interior spaces. In parallel, a third team concentrated on 3D laser scanning the building's exterior. Our planning process was meticulous, as we strategically assigned specific rooms and floors to each team, guaranteeing comprehensive existing conditions documentation across the entirety of the structure. This well-coordinated approach was instrumental in ensuring the acquisition of precise and accurate 3D data for the project to create a custom 3D Revit model and 2D CAD drawings.
Related Case Studies

Invest in Your Project’s Success
We deliver digital representations of buildings and sites to architects, builders, engineers, developers, and facility managers, including point clouds, 2D CAD drawings, and Revit models to ensure accuracy and clarity in the project details.







