As-Built Drawings Guide Historic Church Restoration
Chicago, Illinois
Highlights
Client
Brush Architects
Services
2D CAD
Floor Plans
Exterior Elevations
Interior Elevations
Building Sections
Categories
Religious
Equipment
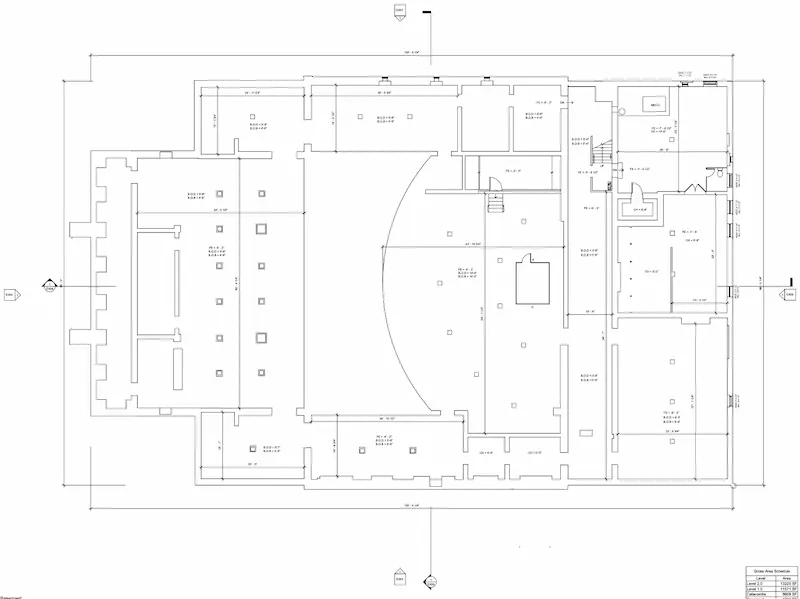
Problem: The 100-year-old Centennial Missionary Baptist Church, including its catacombs, required precise documentation and detailed architectural plans. Additionally, the current owners had undertaken work involving a sloped theatre (which is designed as an upward incline towards the back), and numerous cantilevers around the building, necessitating thorough as-built documentation.
Solution: Existing Conditions’ Project Managers employed a LiDAR-based laser scanner to meticulously scan and document approximately 40,000 square feet of the building's interior and exterior, including the catacombs below ground level. This advanced reality capture technology enabled high-resolution, comprehensive data collection.
Benefit: The 2D CAD drawing project deliverables included detailed floor plans, exterior elevations, and two building sections, providing a thorough and accurate representation of the building's structure. Our client received documents that are essential for informed decision-making in restoration, maintenance, and future architectural planning, ensuring all unique structural elements are accounted for.
Existing Conditions employed a LiDAR-based laser scanner to meticulously scan and document approximately 40,000 square feet of the Centennial Missionary Baptist Church interior and exterior and create detailed floor plans, exterior elevations, and two building sections.
Related Case Studies

Invest in Your Project’s Success
We deliver digital representations of buildings and sites to architects, builders, engineers, developers, and facility managers, including point clouds, 2D CAD drawings, and Revit models to ensure accuracy and clarity in the project details.





.webp)
